为加强规划管理,科学合理开发利用土地资源,柞水县自然资源局组织编制了《柞水县秦丰村二组LWG-01地块控制性详细规划》。依据《中华人民共和国城乡规划法》、《陕西省控制性详细规划管理办法》规定,现将规划(草案)予以公告,广泛征求社会各界意见。
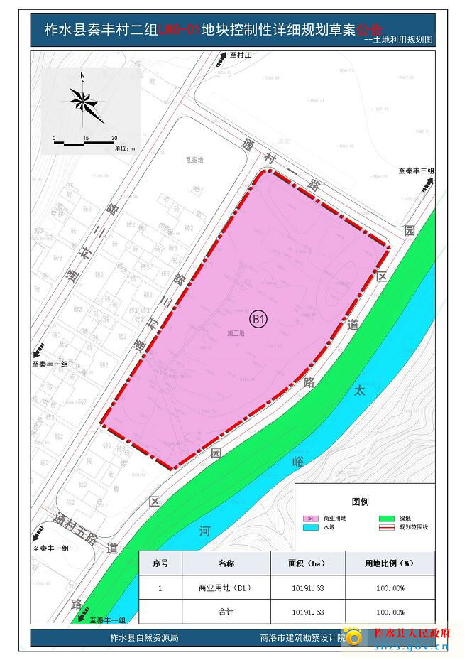
一、区位及规划范围
规划地块位于柞水县秦丰村二组,距离柞水县城约19.9公里,距离营盘镇镇区约6.7公里,距离西柞高速出口约28.5公里。地块西接现状村庄,南临秦丰村村委会,东靠秦丰村道路,北部与现状入户道路相接。规划地块南北长约168米,东西宽约77米,地块整体呈矩形。总占地10191.63㎡(约15.29亩)。
二、用地布局
秦丰村二组LWG-01地块规划区建设用地统计表
用地代码 | 用地名称 | 用地面积(m²) | 占比(%) |
B(B1) | 商服(商业用地为主) | 10191.63㎡ | 100 |
三、主要经济指标
本项目主要经济指标如下。A-01地块面积:10191.63㎡,用地性质:商服用地(商业用地为主);容积率大于1.0,小于等于1.5,建筑密度不大于40%,绿地率不小于25%,建筑限高小于等于21米,配建停车位不少于53个。建筑物退让间距、建筑风貌引导等具体内容详见附图。
公告时间:2021年5月24日至2021年6月22日,共计30
天。
组织编制机关:柞水县自然资源局
规划编制单位:商洛市建筑勘察设计院
公告地点:县政府网站及地块所在地公示栏
提交意见方式:采用传真、邮件、来信等书面方式予以提议。公告期内未提交意见的视为无意见。
联系地址:柞水县乾佑街临河路10号。
联系人:陈定哲 王宇良
联系电话:0914-4322658 传 真:0914-4343745
邮政编码:711400
邮 箱:544162529@qq.com
柞水县自然资源局
2021年5月24日




陕公网安备 61102602611027号